Каталог быстровозводимых зданий
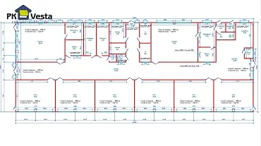
214. Быстровозводимая школа, спорт зал и столовая 21Ш х 56Д х 3.5В из ЛСТК в п. Гурзуф, Крым, Россия
Основные валюты


СНГ
АЗИЯ
АФРИКА
наверх
?
ООО «ПК Веста» использует файлы cookie. Продолжая работу с pkvesta.ru, вы подтверждаете использование сайтом cookies вашего браузера, которые помогают нам делать этот сайт удобнее для пользователей. Однако вы можете запретить сохранение определенных файлов cookie в настройках своего браузера. Обработка данных пользователей осуществляется в соответствии с: «ПОЛИТИКА В ОТНОШЕНИИ ОБРАБОТКИ ПЕРСОНАЛЬНЫХ ДАННЫХ В ООО ПК "ВЕСТА"»
Понятно