
Завод ПК Веста объявляет о заказе быстровозводимой двухэтажной мастерской / офиса 10Ш х 14Д х 6В в г. Красногорск, Россия
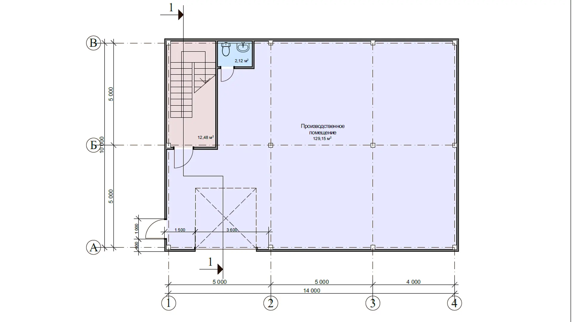
Завод ПК Веста объявляет о заказе быстровозводимой двухэтажной мастерской 10Ш х 14Д х 6В в г. Красногорск, Россия. Клиент планирует производить свою продукцию на территории коттеджного поселка и презентовать ее в своем офисе на втором этаже. Тип конструкции – односкатный. В торцах здания применен плоский парапет. Нагрузка на межэтажное перекрытие – до 300 кг/кв.м. (под офис) Внутри здания учтена маршевая лестница с учетом технологического проема в межэтажном перекрытии. Также, будет внешняя винтовая лестница для эксплуатации кровли.
Легкий металлокаркас базируется на известной гибридной технологии (ЛМК+ЛСТК) и обшивается негорючими сэндвич панелями (стены и кровля – 150мм, минвата) В комплект здания включены секционные ворота и несколько дверей. Для фасадов клиент выбрал нейтральный строгие серые цвета с сочетанием белого.
Быстровозводимая мастерская/офис был рассчитан в бесплатной онлайн системе ВебСтил.
Смотрите все новости в Telegram канале:
https://t.me/+ut_53pCgybc0MzYy







