
ПК «Веста» объявляет о заказе быстровозводимого торгово-промышленного здания в Новомосковске, Россия
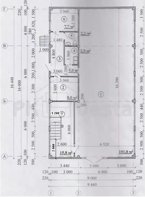
ПК «Веста» объявляет о заказе двухэтажного быстровозводимого торгово-промышленного здания в Новомосковске, Россия (9.44Шх16.44Дх8.4В, 15 гр.) на базе ЛМК (сварная балка из черного металла). Вся прогонная часть выполнена из оцинкованных холодногнутых профилей. На первом этаже клиент планирует разместить торговое помещение (магазин) со стеллажами и мини-складом, а на втором – небольшое рыбное производство. С точки зрения внешнего вида полнокомплектное здание отличается от аналогов выступами второго этажа по краям. Цветовое решение классическое – сочетание светлых синих тонов с белым. В комплект здания входят все доборные элементы, метизы, болты, двери и ворота. Быстровозводимое строение из сэндвич-панелей было спроектировано в бесплатной онлайн-системе WebSteel.
Смотрите все новости в Telegram канале:
https://t.me/+ut_53pCgybc0MzYy









